【リッツカールトン日光】宿泊記完全ガイド|奥日光の高級ホテルの客室・朝食・予約・レストランなど徹底解説【2026年版】

更新日:2025年8月15日
この記事では、リッツカールトン日光宿泊記として過去8回の宿泊体験をもとに、客室(デラックスルーム/スイートルーム)の紹介、ホテル内施設、ダイニングレストラン(朝食、ランチ、アフターヌーンティ、ディナー、ルームサービス)、宿泊予約・料金、周辺観光施設やレストランなどを詳しく紹介しています。

■X(旧Twitter):@happy_mi_life)
ISAの旅行・ホテルステイの最新情報を発信
■Instagram:@isa_happy_mi_life
旅行・ホテルステイのお得情報を発信
■マイベストプロ:プロフィールページ
旅行・ホテルステイを中心としたポイ活の専門家として登録
■LINE公式:@488zmfms
お得情報をより詳しく|無料相談受付中

- リッツカールトン日光
- 客室タイプ
- リッツカールトン日光の宿泊料金
- リッツカールトン日光の予約は楽天トラベルがお得
- リッツカールトン日光へのアクセス
- リッツカールトン日光のチェックイン・チェックアウト
- 中禅寺湖ビュー1キングバルコニー宿泊記
- 中禅寺湖ビュースイートルーム(115㎡)宿泊記
- リッツカールトン日光の4つのダイニング/レストラン
- ザ・ロビーラウンジ
- レークハウス
- 日本料理 BY ザ・リッツ・カールトン日光
- ザ・バー
- リッツカールトン日光の朝食
- ザ・ライブラリー
- 中庭とリッツカールトン日光の各棟
- 温泉
- フィットネススタジオ
- クラブラウンジはありません
- アクティビティ
- リッツカールトン日光周辺レストラン・観光スポット
- 知っておくと便利なスーパーマーケット|リッツカールトン日光周辺
- マリオットエリート特典とリッツカールトン日光オリジナルの特典
- リッツカールトン日光でお得に宿泊する方法①|マリオットアメックスプレミアムカード
- リッツカールトン日光でお得に宿泊する方法②|アメックスプラチナカードのファイン・ホテル・アンド・リゾート(FHR)
リッツカールトン日光
リッツカールトン日光は、2020年7月15日に日本国内では東京・大阪・京都・沖縄についで5番目のリッツカールトンブランドとして開業したラグジュアリーホテルです。メイン棟、レイク棟、マウンテン棟の3棟からなる全94室の客室があります。
日光国立公園内の中禅寺湖の畔に面し、世界中のリッツカールの中でも温泉を持つのは、リッツカールトン日光だけです。
また全室に男体山や中禅寺湖のビューを楽しめる内風呂やバルコニーが装備されており、日光の自然を存分に満喫しながら贅沢な時間を過ごせる日光の高級ホテルです。



このエントランスの先に、リッツカールトン日光で味わえる最上級の贅沢空間が待っています。
客室タイプ
リッツカールトン日光の客室タイプは以下の6種類です。
| 客室タイプ | 広さ | 眺望 | 客室数 | フロア |
| リバーサイドガーデンビュー キング | 57㎡ | 大谷川 | 20 | 1~3階 |
| リバーサイドガーデンビュー ダブル | 57㎡ | 大谷川 | 15 | 1~3階 |
| 男体山ビュー キング | 57㎡ | 男体山 | 7 | 1~4階 |
| 男体山ビュー ダブル | 57㎡ | 男体山 | 5 | 1~4階 |
| 中禅寺湖ビュー キング | 57㎡ | 中禅寺湖 | 24 | 3~4階 |
| 中禅寺湖ビュー ダブル | 57㎡ | 中禅寺湖 | 13 | 3~5階 |
| 中禅寺湖ビュー スイート(別記事の宿泊記にリンク) | 115㎡ | 中禅寺湖、 男体山 | 9 | 4~5階 |
| ザ・リッツカールトン スイート | 277㎡ | 中禅寺湖、 男体山 | 1 | 5階 |
スイートを除く客室タイプ(リバーサイドビュー、男体山ビュー、中禅寺湖ビュー)のフロアプランは、ベッドタイプ(キングかダブル)違いのみでその他は全て同じです。

中禅寺湖ビューの客室眺望は、オフィシャルでは「中禅寺湖」のみとなっていますが、男体山も見ることができます。
また、中禅寺湖ビューの客室は、キングは3階-4階のみですが、ダブルは3階-5階となっています。
※中禅寺湖ビューでも高いフロアの方が中禅寺湖はよく見えます。

リッツカールトン日光の宿泊料金
宿泊料金は変動するのであくまでも参考ですが、2022年10月時点で予約できる2022年12月までの宿泊料金を調べてみました。
※料金はサービス料・消費税込みの千円単位の料金です
| 客室タイプ | 最安値 | 最高値 |
| リバーサイドガーデンビュー キング | 97,000円 | 180,000円 |
| リバーサイドガーデンビュー ダブル | 104,000円 | 182,000円 |
| 男体山ビュー キング | 110,000円 | 195,000円 |
| 男体山ビュー ダブル | 116,000円 | 201,000円 |
| 中禅寺湖ビュー キング | 122,000円 | 207,000円 |
| 中禅寺湖ビュー ダブル | 128,000円 | 213,000円 |
| 中禅寺湖ビュー スイート | 201,000円 | 304,000円 |
| ザ・リッツカールトン スイート | 1,137,000円 | 1,224,000円 |
※最高値は紅葉シーズンの10月の週末料金です。
リッツカールトン日光の予約は楽天トラベルがお得
リッツカールトン日光の予約は、マリオットと提携している楽天トラベル経由をお勧めします。
特にマリオットボンヴォイ会員の人は、楽天トラベルからの予約がお得です。
理由は以下のとおり。
楽天トラベルからお得に予約する方法については、下記の別記事でも解説していますので、ご覧ください。
お得に予約する方法を詳しく解説
リッツカールトン日光の宿泊料金

リッツカールトン日光へのアクセス
リッツカールトン日光は、中禅寺湖の畔にあるので中禅寺湖を目指してアクセスすることになります。
住所:〒321-1661栃木県日光市中宮祠2482番地
電話:0288-25-6666
自動車でのアクセス
自動車を利用する場合は、日光道高速清滝ICから国道120号を約17km(約25分)です。
東京からスムーズだと2時間半~3時間ほどです。
古いカーナビで目的地を設定する場合は、「華厳の滝」を目的地にすれば迷うことはありません
※清滝IC方面からいろは坂に入りいろは出口すぐのところにリッツカールトン日光があります
駐車場は、宿泊者は1泊3,000円です。
※駐車場を利用する場合は、事前に予約をしましょう。収容台数が多くないためホテル内の駐車場が利用できない場合があります
※ホテル内の駐車場を利用しなければ、ホテル近辺に安くで利用できる駐車場もありますが観光シーズンは満車になるので注意しましょう
鉄道・バスでのアクセス
JRを利用する場合は、東北新幹線の「JR宇都宮駅」まで乗車し、JR日光線に乗り換え「JR日光駅」で下車。
東武線利用の場合は、東武日光線の「東武日光駅」で下車します。


東武日光駅前のバス停
「JR日光駅」または「東武日光駅」からは、東武バス(約40分)もしくはタクシー(約30分)を利用します。
東武バス利用の場合は、「ザ・リッツカールトン日光駅(25番)」で下車します。
※古いバスの路線図には、「ザ・リッツカールトン日光駅(25番)」が記載されていない場合がありますが、「中禅寺温泉」行きのバスに乗れば問題ありません。

下の写真が、国道120号(いろは坂)沿いのバス停(ザ・リッツカールトン日光)からすぐにあるリッツカールトン日光のエントランスです。
写真歩道沿いの奥にバス停も見えていますね。



東武特急リバティとローカルバスでアクセス
私は、いつも東武鉄道の『東武特急リバティ』を利用(「とうきょうスカイツリー駅」から「東武日光駅」)し、東武日光駅からはローカルバスを利用しています。

浅草駅から東武日光までの所要時間は約1時間半、東武日光駅からリッツカールトン日光まではローカルバスで約40分です。

電車でのアクセスは、車の移動では絶対できないパソコン作業もできます。
『東武特急リバティ』なら電源もあります
時間を有効に使えるのでとても効率もよく快適です。
おすすめ!まるごと日光 東部フリーパスがお得
東武鉄道を利用する場合は、「まるごと日光 東部フリーパス」を利用するとお得です。
まるごと日光 東武フリーパスは、日光地区の鉄道およびバスが4日間乗り降り自由になるので、東部鉄道の普通運賃と東部日光駅からリッツカールトン日光までのローカルバス料金を都度支払うよりも、お得です。
また、日光周辺の観光施設での割引料金適用もあります。
| 特急券 | 普通乗車券 | 路線バス | 合計 | |
| 通常購入(往復) | 3,300円 | 2,800円 | 2,500円 | 8,600円 |
| まるごと日光 東部フリーパス | 3,300円 | 4,810円 | 8,110円 | |
※上記は2025年の料金です。最新の料金は下記【まるごと日光フリーパス】ボタンから確認ください
東部鉄道オフィシャルページへ
リッツカールトン日光の送迎サービス
2025年7月から東武日光駅~リッツカールトン日光の送迎が再開されました。
時刻表は以下のとおりです。

東部日光駅/JR日光駅の乗り場は以下のとおりです。

送迎バスを利用する場合は、事前予約が必要です。
また、マリオットボンヴォイのアカウント番号の入力が必要となるため、アカウントの作成は必須となります(無料)
リッツカールトン日光のチェックイン・チェックアウト

レセプションカウンター

ロビースペース
上写真がリッツカールトン日光のレセプション・ロビースペースです。
レセプションカウンター・ロビースペースは広くないため、チェックイン手続きは、営業時間外のバーやライブラリーエリアが利用されます。
チェックアウト手続きは上写真のロビースペースを利用することが多いです。
チェックイン|アーリーチェックイン
リッツカールトン日光のチェックイン時間は15時からとなります。

バー(左)/ライブラリースペース(右)
フリースペースとなっているライブラリースペースか、営業時間外のバーエリアをチェックイン手続きに利用することがほとんどです。
ここでウェルカムドリンクを頂きながら、チェックイン手続きをします。

ウェルカムドリンクのシャンパン(2022年)

オリジナルのノンアルコールカクテル

お茶と和菓子
また、チェックイン手続きは、宿泊する客室内での対応も可能です。
チェックイン手続きをする際に、客室での手続きするか、ここで(バー/ライブラリースペース)手続きするかを確認されると思います。
アーリーチェックイン
空室状況によりアーリーチェックインの対応がありますが、通常は追加料金の対象となります。
しかし、マリオットエリート会員であれば、空室状況により柔軟に(無料で)アーリーチェックインの対応をしていただけます。
私のリッツカールトン日光の過去の宿泊は、だいたいホテルに11:30~13:00の間に到着していますが、すべてアーリーチェックインの対応をしていただいています。
ただし、アーリーチェックインは、あくまでも客室の空き状況による対応となるため確約ではありませんのでご注意ください。
特に紅葉シーズンなどの繁忙期のアーリーチェックインは難しいと思われるのご注意ください。
事前に到着時刻を伝えておくことをおススメします。マリオットメンバーの方はスマホアプリのチャットを利用するのが便利です。
チェックアウト|レイトチェックアウト
リッツカールトン日光のチェックアウト時間は12時です。

チェックアウトの手続きは、レセプションカウンターかロビースペースで行います。
チェックアウトの際は、宿泊記念としてリッツカールトン日光オリジナルのお守りももらえます。

2020年7月15日(開業日)~2021年7月14日の1年間はブルー。
2021年7月15日~2022年7月14日の1年間はワインレッドのお守りが配られました。

2022年7月15日からは、ベージュのお守り。

2023年7月15日からは、パープルのお守りです。
2024年7月15日からは、グリーンのお守りでした・
レイトチェックアウト
空室状況によりレイトチェックアウトが可能ですが、通常は追加料金が発生します。
マリオットエリート会員であれば、ゴールドは14:00まで、プラチナ以上は16:00まで可能です。
私は、プラチナ・チタンで宿泊していますが、ほとんどが16:00レイトチェックアウトの対応をしていただいています。
過去の宿泊では、11:30頃にホテルに到着してアーリーチェックインさせていただき、チェックアウトが16:00、なんと28時間半もの時間をリッツカールトン日光で満喫させて頂いたこともあります。
なお、アメックスプラチナカード会員は、ファイン・ホテル・アンド・リゾート(F・H・R)の特典を利用すれば、レイトチェックアウト16:00が確約になります。
ファイン・ホテル・アンド・リゾートの詳細はこちら
中禅寺湖ビュー1キングバルコニー宿泊記
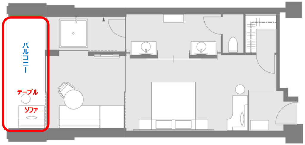
スイートルームを除くリッツカールトン日光の客室レイアウトは、ベッドルームの位置が左右入れ替わっているパターンがありますが全て同じです。
違いはビューのみ。(中禅寺湖ビュー、男体山ビュー、リバーサイドビュー)
ここで紹介するのは、中禅寺湖ビューの客室ですが、ビュー以外の客室レイアウトは同じなので、こちらでリッツカールトン日光の客室の内容が確認可能です。

客室は57㎡とかなり広い客室です。
客室に入ると広いエントランス、その奥にベッドルーム、さらに緑園ラウンジ、バルコニーがあります。
ベッドルームの正面にバスルームシンクが2台、浴室&シャワー、トイレがあります。
ちなみにここで紹介する客室は3階の客室(311号室)でした。

中禅寺湖ビュー1キングバルコニーを動画(Youtube)でも紹介しています。
ベッドルーム
客室に入ると完全に個室になっているわけではありませんが、ベッドルームと言えるスペースがあります。
ベットサイズは200cm×180cm。


和を意識したデザインで、木のぬくもりを感じる高級感のある客室です

ベッドの横には大人1名が横になれるソファーと丸テーブルもあります。
ソファーの後ろにある、手の込んだ木製のパーテーションがアートのようで客室へこだわりを際立ています

ちなみに、ツインルームはこんな感じです。
ベッドルーム写真集(11枚)
縁側ラウンジ
ベットルームの奥にあるのが縁側ラウンジで、おそらく客室の中では最も時間を費やすスペースになると思います。

大きなソファーとテーブル、テレビ、ミニバーがあり、中禅寺湖ビューと男体山の眺望を楽しめるスペースです。

ここでテレビを見たり、中禅寺湖や男体山ビューを楽しんだり、インダイニングルームで食事をしたり、パソコンをしたり・・・・縁側ラウンジで過ごす時間は都会の慌ただしさを忘れさせてくれる、癒しの空間でした
縁側ラウンジ|写真集(8枚)
ミニバー|写真集(6枚)
縁側ラウンジにあるミニバー、冷蔵庫、ネスプレッソです。
ミニバーも木製で和を感じます。ミニバーの上にある松の木の盆栽も縁側ラウンジの雰囲気を落ち着かせてくれます。
ネスプレッソとリッツカールトン特製のミネラルウォーター以外は有料です。
ビール(小瓶)1本が1,000円ほどするので、贅沢料金がかなり上乗せされています笑
浴室とシャワー
中禅寺湖ビューが楽しめる浴室です。
客室で中禅寺湖やリッツカールトン日光の緑の中園を見ながら入るお風呂は格別です。


客室にあるこのバスタブが最高です。
ご覧のように客室からのビューを楽しみながら、客室内でゆっくり時間をかけてお風呂を楽しむことができます。
縁側ラウンジ側のスライド式のドアを開ければ縁側ラウンジとバルコニーとも繋がります。(写真はドアを開けた状態です)
ただ、立ち上がると外から丸見えになりますので注意してください。もちろん、スライドを下ろして外から見えなくすることも可能です
浴室&シャワー|写真集(7枚)
バルコニー
季節や天気にもよりますが、私が宿泊した9月はバルコニーが最も居心地の良いスペースでした。
おそらく、バルコニーにいる時間が一番長かったかと思います。


中禅寺湖ビューからの眺望は、オフィシャルでは『中禅寺湖』となっていますが、実際には、『中禅寺湖と男体山』両方のビューが楽しめます。
ここでの眺望を楽しみながら、パソコンをしたり、音楽を聴いたり、ルームサービスの食事をしたり、コーヒーを飲んだりと、とても充実した時間を過ごすことができました。

中禅寺湖ビューのバルコニーから見た男体山。
ご覧のように中禅寺湖ビューでも男体山を綺麗に見ることができます

中禅寺湖ビューのバルコニーから見た中禅寺湖。
私が利用した客室(311号室)は3階なので、手前にある木々が中禅寺湖ビューを遮っていました。
肉眼で見ると写真よりは中禅寺湖が見ていましたが、より4階、5階の方が中禅寺湖が綺麗に見えると思います。
また、この客室(311号室)はレイク棟で、メイン棟に近いのエレベーターホール側でしたが、逆サイド側(メイン棟から遠い)の方が木々が低く、少なくなっているのでより中禅寺湖が綺麗に見えると思います。
バルコニー|写真集(9枚)
バスルームシンク

ベッドルームとバスルームシンク繋ぐ木製のスライド式のドアが客室全体の高級感を際立たせておりとても印象的でした。
写真では伝わりませんが、スライド式ドアを開閉する際の滑らかさが素晴らしく(心地よく)、客室へのこだわりを感じました

このスライド式のドアを開けると下記のようにバスルームシンクに繋がります。
木製の棚には、何も入っていないので着替えの収納など自由に利用することが可能です

バスルームシンク|写真集(4枚)
リッツカールトンお決まりの2シンクですが、とてもシンプルなデザインです。
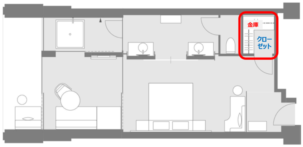
ウォークインクローゼット
広々としたウォークインクローゼット。
室内金庫もここにあります。


上の写真左下にあるグレーの袋は、温泉に行く際に小物入れに利用できます。
※チェックインの際に渡してもらえます

リッツカールトン日光特製の浴衣もありました。
部屋着として利用しりたり、浴衣を着たまま温泉まで移動することもできます。
その他
リッツカールトン日光の客室に関連するその他の情報をお伝えします
ウェルカムギフト
ウェルカムギフトは、ぶどうと和菓子でした。
ウィルカムギフトが入っている木製ケースもとてもオシャレです。

季節によりフルーツの内容も変わります。
上写真は9月、下写真は4月です。

下駄
ホテル内で利用できる下駄が準備されていました。

ベッドサイドのテーブル①
客室の照明やブラインドの開閉、USBプラグがあります

ベッドサイドのテーブル②
Bluetoothで接続可能なBoseのスピーカー、時計、電源プラグがあります

インルームダイニング
リッツカールトン日光の素晴らしい客室でインダイニングルームを利用して、客室で贅沢な時間を過ごしたいと考える宿泊客が多いそうです。
そのため、インダイニングルームは混み合うことが多く、注文から提供される時間まで30分以上掛かる場合もあるとのことです。
そのため、私は、事前に時間指定をしてインダイニングルームのオーダーをします。
以下は
・海老原ファームのグリーンサラダ(フレンチドレッシング)
・ペンネ ボロネーゼ
これに客室ミニバーの瓶ビールを1本頂きました

こちらは、リッツカールトン日光クラブハウスサンドウィッチ。
私は、クラブハウスサンドウィッチが大好きで、色々なホテルのクラブハウスサンドウィッチを食べいていますが、リッツカールトン日光がNO1です。


分厚くてジューシーなベーコンが最高に美味しいです。
居心地のよい素晴らしい客室で、人目を気にすることなく、自由なスタイルで美味しい食事を楽しめるインルームダイニングはおすすめです。
中禅寺湖ビュースイートルーム(115㎡)宿泊記

リッツカールトン日光のスイートルームは全部で10室あり、その内の1室が『ザ・リッツカールトンスイート(277㎡)』で、残り9室が『中禅寺湖ビュースイート(115㎡)』となっています。


また、スイートルームは、中禅寺湖がよりよく見えるメイン棟およびレイク棟の4~5階にあります。(1階~3階にはスイートルームはありません)

中禅寺湖ビュースイートルームについては、別記事で紹介していますので、詳しくは下記の「中禅寺湖ビュースイート宿泊記」ボタンからご確認ください。
リッツカールトン日光の4つのダイニング/レストラン

リッツカールトン日光には、地元日光の食材を活かした創作料理を味わえる4つのダイニングがありまます。
中禅寺湖にあるザ・リッツ・カールトン日光では、日本の伝統と職人技をご堪能いただける格別なダイニングをご提供しています。伝統文化の美とデザインを取り入れた当ホテルのレストラン、バー、ラウンジで、その一つひとつに地元の食材を活かしたお料理やお飲み物をご賞味ください。
| レストラン名 | 種類 |
| ザ・ロビーラウンジ | アフターヌーンティ/軽食 |
| レークハウス | 洋食レストラン |
| 日本料理 BY ザ・リッツ・カールトン日光 | オールディダイニングレストラン(お寿司・鉄板焼き・会席・アラカルト) |
| ザ・バー | バー |
リッツカールトン日光には、地元日光の食材を活かした創作料理を味わえる4つのダイニングがあります。
ザ・ロビーラウンジ

| 営業時間 | 11:00~17:00(L.O 16:30) |
| 定休日 | なし |
| ドレスコード | カジュアルエレガント |
| 座席 | 32席(テラス 6席) |
| オフィシャルサイト | https://www.ritzcarlton.com/jp/hotels/japan/nikko/dining/the-lobby-lounge-and-library |
| 一休レストラン(予約 | 一休で【ザ・ロビーラウンジ】のお得なプランを確認/予約する |
ザ・ロビーラウンジは、アフターヌーンティーやカフェ、軽食(アラカルトメニュー)に利用できます。
天井・床・壁のほとんどが木製で温かみがあり、大きなソファーに座って中庭側を見ながら過ごす時間は最高です。

ロビーラウンジの写真集
アフターヌーンティ|ロビーラウンジ
ザ・ロビーラウンジでおすすめなのが、アフターヌーンティです。
都会でいただくアフターヌーンティと違って、ゆっくりと過ぎていく時間をたくさんの自然感じながらアフターヌーンティは最高です。
2020年9月、リッツカールトン日光のアフターヌーンティをいただきました。
アフターヌーンティは、ザ・ロビーラウンジで提供されており、料金は6,500円(サ・税込)~です。
まず、ウェルカムドリンクで冷たい煎茶をいただきました。

リッツカールトン日光のアフタヌーンティで提供されるお茶は、日本茶で6種類から選ぶことができます。

私がアフターヌーンティをいただいた時(2020年9月)は以下の6種類でした。
芳ばしさ、甘味、爽やかさ、渋みなど、それぞれ種類によって特徴が異なります。
| 普通蒸煎茶/鹿児島 | すっきりとした味わいの中に旨味もある茶葉 |
| 中蒸煎茶/福岡 | 旨味と渋みのバランスの良い茶葉 |
| かぶせ茶/京都 | 玉露のような旨味と爽やかな余韻を感じられる茶葉 |
| 普通蒸煎茶/静岡 | 桜餅のような甘じょっぱい香りと味わいを感じられる茶葉 |
| 蒸製玉緑茶/長崎県 | 旨味と香ばしさを感じられる茶葉 |
| 炒りたて焙じ茶/静岡 | 焙煎の香りと、のどごしのすっきりとした味わいの茶葉 |
私は「普通蒸煎茶/静岡」をチョイス。
こちらが2020年9月に提供されていたアフターヌーンティです。


一段目(上段)
・マンゴーパッションフルーツタルト
・ヴィーガンパンナコッタ 苺 ココナッツ
・抹茶オペラ


2段目(中央)
・焙じ茶クレームブリュレ
・麦焦がしシュークリーム
・日光片山酒造 大吟醸酒粕チーズケーキ
※私はチーズが苦手なので「抹茶ソースにようかん・クリーム・きのこパウダー」のデザートに変更して頂いています


3段目(下段)
・栃木県産ジャンボハムとグリュイエールチーズのサンドイッチ
※私はチーズが苦手なのでグリュイエールチーズをひよこ豆のフムスに変更して頂いています
・大滝日光スモークサーモンとアボガド ポン酢のジュレ
・キッシュロレーヌ ジュノベーゼクリームとマイクロリーフ
・栃木県産黒毛和牛のローストビーフ レフォールソース


スコーン2種類(プレーン生姜と杏)クロテットクリーム栃木県産ジャム

約2時間、ゆっくりアフターヌーンティを堪能させてもらい、とても幸せな時間をすごせました。
ごちそうさまでした。

レークハウス

| 営業時間 | 11:00~15:00(L.O 14:00) 17:00~21:00(L.O 21:00) ※テイクアウトタイム 11:00~17:00 |
| 定休日 | なし |
| ドレスコード | カジュアルエレガント |
| 座席 | 1階 19席(テラス 22席) 2階 22席(テラス 14席) |
| オフィシャルサイト | https://www.ritzcarlton.com/jp/hotels/japan/nikko/dining/lakehouse |
| 一休レストラン(予約 | 一休で【リッツカールトン日光ダイニング】のお得なプランを確認/予約する |
レークハウスはリッツカールトン日光の中庭や中禅寺湖の畔に立つ木々など自然をいっぱい感じながら食事やカフェを楽しむことができる洋食レストランです。

別記事でレークハウスのランチ、ディナーメニュー、アラカルトを紹介しています。
ランチ・ディナー・アラカルト・アートの紹介
レークハウス写真集
日本料理 BY ザ・リッツ・カールトン日光

| 営業時間 | <朝 食> 07:00~11:00(L.O 10:30) <会 席> 12:00~15:00(L.O 14:00) <寿 司> 12:00~15:00(L.O 14:00) 17:00~21:00(L.O 20:00) <鉄板焼> 17:00~21:00(L.O 20:00) |
| 定休日 | <寿 司> 月曜・水曜 |
| ドレスコード | カジュアルエレガント |
| 座席 | <会 席> 56席(テラス席 28席) <寿 司> 8席 <鉄板焼> 12席 <プライベートダイニング> 10席 |
| オフィシャルサイト | https://www.ritzcarlton.com/jp/hotels/japan/nikko/dining/the-japanese-restaurant |
| 一休レストラン(予約) |
日本料理BYザ・リッツ・カールトン日光は、リッツカールトン日光のメインダイニングです。
朝食、ランチ、ディナーが提供されており、朝食は和食・洋食のセット、ランチは懐石とお寿司、ディナーは、懐石・お寿司・鉄板焼き・しゃぶしゃぶ・すき焼きが提供されています。

鉄板焼きカウンター

寿司カウンター
日本料理BYザ・リッツ・カールトン日光の写真集
ザ・バー

| 営業時間 | 16:00~22:00(L.O 21:30) |
| 定休日 | ※営業時間・サービス内容は、状況に応じて変更する場合があります。 |
| ドレスコード | カジュアル |
| 座席 | 18席(テラス 8席) |
| オフィシャルサイト | https://www.ritzcarlton.com/jp/hotels/japan/nikko/dining/the-ritz-carlton-bar |

カウンター席、ソファー席、窓際にも2名用のテーブル席、テラス席、があります。
やはり、カウンター席がオススメです。

バーカウンター後ろにあるシェルフには、国内外から厳選されたウィスキーなどのボトルがアートのように飾られており、バーの雰囲気を一層高めています


夜はライトアップされて、昼間とは全く違う大人の雰囲気に!



左のピンクのカクテルノンアルコールです。
私の妻はお酒が飲めないので、映えるノンアルカクテルをオーダーしたらこんな素敵なノンアルカクテルを作ってもらえました。

大好きなジントニック。
こちらのジンは「THE BOTANIST(ボタニスト)」。美味しい。
ジン(アルコール)は、0度でも凍らないので0度以下で冷やされていてるため、空気に触れるとボトルの表面に霜がつきます。
写真を見るだけでも、美味しさが伝わるのではないでしょうか!

こちらのジンは、外国人は好むという「HENDRICK’S(ヘンドリックス)」。

グラスで提供されている3種類の赤ワインの中から(2023年4月)、イタリアワイ
大きめのグラスに注がれた王様
ムードのある雰囲気もプラスされ、お値段以上の大満

こちらはリッツカールトン日光のザ・バーで一番高級なウィスキーです。(2021年9月時点)
「イチローズモルト&グレーン ジャパニーズブレンデッド ウィスキー リミテッドエディション 2019」です。
ネットで調べましたが、新品は出てきませんね。
2021年ものは1本35万円というのがありました。
ちなみに、こちらのウィスキーは1杯62,000円です。

アラカルトメニューをつまみに乾杯!


私は、夜のバーでディナーも兼ねてお酒を飲みながらアラカルトメニューをオーダーすることが多いです。
アラカルトメニューのおススメは「ザ・リッツ・カールトン日光クラブハウスサンド(3,700円)」です。
クラブハウスサンドは、ジューシーな厚切りベーコンが最高に美味しいです。
※私がこれまで食べたホテルのクラブハウスサンドの中でNO1と言える美味しさ!超おススメです。


バーのメニューには記載されていませんが、レイクハウスで提供されているアラカルトメニューも提供可能な場合があります。
こちらのピザはレイクハウスのアラカルトメニューです。
※日光HIMITSU豚のサルシッチャとストラッチャテッラのピッツァ(3,200円)
リッツカールトン日光の朝食
リッツカールトン日光の朝食は、日本料理BYザ・リッツカールトン日光またはルームサービスで提供されます。
提供される時間は7:00〜11:00(ラストオーダー10:30)で、料金は7,800円(サ・税込)です。
朝食(和食)|2020年7月 日本料理BYザ・リッツカールトン日光
2020年7月、日本料理BYザ・リッツカールトン日光で朝食(和食))をいただきました。

シリアル、ミューズリー、プリン、パンナコッタ、牛乳、コーヒー牛乳は、好きなものを好きなだけいただくことができます。

パン・サラダ・ソフトドリンク・コーヒー

メインの和食セットです。
焼き魚は鱈、お肉は黒毛和牛のローストビーフ、その他、お刺身、鰻と胡瓜、大根おろし、白和え、日光たまり漬、フルーツ
朝食|写真集(13枚)
朝食(洋食・和食)|2022年9月
2022年9月の宿泊は、スイートルームにアップグレードしてもらえたので、インルームダイニングで。
ベランダにテーブルを出して、朝食をいただきました。

ベランダでいただく朝食はとても気持ち良いのでおすすめです。
寒い時期は、おススメできませんが><

和食

洋食

朝食(洋食)|2021年9月
2021年9月、インルームダイニングで朝食(洋食)をいただきました。




9月はリッツカールトン日光滞在には、ベストな気候(寒くもなく暑くもなく丁度よい気温)です。
客室のベランダで中禅寺湖や男体山を眺めながら食べる朝食は最高な在宅です。
朝食(和食)|2021年4月
2021年4月、中禅寺湖ビューのスイートに宿泊した際にインルームダイニングで朝食(和食)をいただきました。

中禅寺湖ビュースイートのリビングルーム
スイートルームの宿泊記は別記事で詳しく紹介しています


せっかくのスイートルームなので、朝食も客室でいただくことに。
ご覧のように(上写真)中禅寺湖を一望できる客室で食べる朝食は最高です。




朝食の内容は、レストラン「日本料理BYザ・リッツカールトン日光」と同じです。
1つだけ違うのは、デザートのプリン・パンナコッタやコーヒー牛乳が、レストランは食べ放題になっている点です。
ただ、もともと朝食の量が多いので、食べ放題するほど食べられないです。
ザ・ライブラリー
ザ・ライブラリーは、ザ・ロビーラウンジとザ・バーの間にあり両サイドが暖炉に囲まれたスペースで、宿泊客が自由に利用できるパブリックスペースです。
中央にはくるみの木から切り出した大きなテーブルがあります。


大きなゆったりとしたソファーで、木のぬくもりを感じ『豊かな紳士の邸宅』にいるような雰囲気を感じることができるスペースです。
ちなみにリッツカールトン日光のデザインコンセプトは、『奥日光の自然と調和する邸宅』とのことです。

ここで読書をしたり、パソコン作業をしたり、のんびりと中禅寺湖を眺めたり・・・・贅沢な時間を満喫できる空間です。
中庭とリッツカールトン日光の各棟
リッツカールトン日光の中庭から見た各棟(メイン棟、レイク棟、マウンテン棟)をお伝えします。
メイン棟
メイン棟の1階には、ザ・ロビーラウンジ、ザ・バー、ザ・ライブラリーがあります。
客室はすべて中禅寺湖ビューですが、男体山も見ることができます

メイン棟の前は芝生で緑いっぱいの中庭になっています。

夜に撮影したメイン棟。
この日はほぼ満室のようで、ほとんどの客室に明かりがともってました。
レイク棟
レイク棟の1階には、日本料理BYザ・リッツ・カールトン日光があります。

レイク棟の客室は、メイン棟と同様ですべて中禅寺湖ビューの客室ですが、男体山も見えます。
また、上写真、奥側でかつ上層階の方が中禅寺湖が良く見えます。

マウンテン棟
男体山側にあるマウンテン棟です。
中禅寺湖は見えませんが、男体山と緑園、中禅寺湖から流れる大谷川を見ることができます

客室は、低層階がリバーサイド・ガーデンビュー、上層階は男体山ビューとなっています。

中禅寺湖は見えませんが、客室からは緑いっぱいの芝生や木々、大谷川を見ることができます。

大谷川
上写真は、ホテルの外から撮影した大谷川です。
大谷川の右手がリッツカールトン日光です。(木々の隙間から建物が見えています)
中庭側のエントランス
こちらは中庭側のエントランスです。
このエントランスから出れば、中禅寺湖は目の前です

エントランスを入って左手1階がレークハウスです。
レークハウスの奥に見えているのがメイン棟、メイン棟の右手に少し見えているのがレイク棟です。

中庭側のエントランスから入ってすぐにあるレークハウス1階。
気候の良いシーズンはテラス席が最高ですね。
温泉
リッツカールトン日光の温泉は、リッツカールトンブランドでは世界初の温泉施設です。
利用可能時間は、5:30~11:00/14:00~23:00です。
※11:00~14:00は清掃のため利用できません。

温泉はリッツカールトン日光の1階にあり、スパ&温泉にはメイン棟から専用通路(上写真)を通ってアクセスします。

スパ&温泉に続く通路
泉質
・硫化水素型の単純硫黄泉で泉温は78.6゜C。源泉は無色透明ですが、地上で空気に触れることにより乳白色のにごり湯に変わります。硫黄特有の香りが特徴的で、中性~弱酸性の泉質です。
効能
・神経痛や関節痛に加え、冷え性や疲労回復に効果があります。また、温泉に含まれる天然の保湿成分「メタケイ酸」の含有量が多いことから、肌の新陳代謝を促進し、美肌効果に優れているといわれています。
温泉施設の写真撮影は禁止のため写真はありません。
画像などはリッツカールトン日光のオフィシャルサイトでご確認ください
※ロッカーにはデジタル式のキーが装備されているため貴重品があっても安心して、温泉・サウナを楽しめます
スパラウンジ
温泉施設入口の手間には、中庭が施されたスパラウンジがあり、お風呂あがりの待ち合わせや寛ぐ場所として利用できます。


上写真の奥にある黒いBOXは冷蔵庫になっており、冷たいミネラルウォーターが入っています。
フリーで利用できるので温泉上がりにキンキンに冷えたミネラルウォーターが飲みたい人は、是非どうぞ!
フィットネススタジオ

フィットネススタジオは24時間利用可能で、イタリア製ブランド「テクノジム社」の充実したトレーニングマシンを取り揃えらています。

マシン一覧
- ランニングマシン(EXCITE RUN)
- フィットネスバイク(EXCITE RECLINE)
- クロストレーナー(EXCITE VARIO)
- ワイヤープレス&プルステーション(KINESIS STATION)
- ダンベルセット
- ストレッチポール
- フィットネスマット
- メディシンボール 他
フィットネススタジオ|写真集(6枚)
クラブラウンジはありません
リッツカールトン日光には、クラブラウンジはありませんのでご注意ください。
アクティビティ
リッツカールトン日光では様々なアクティビティが準備されています。(無料あり)
詳しくは、リッツカールトン日光のオフィシャルサイトでご確認ください
無料のサイクリングツアーに参加|2021年9月
奥日光歴史探索サイクリング(無料)に参加しました。
サイクリングは約1.5キロで、リッツカールトン日光から英国大使館・イタリア大使館まで行って、帰りに日光山中禅寺立木観音に立ち寄るツアーでした。
私が参加した時は、私を含め8名ほどが参加されていて、うち2名は小学生ほどのお子さんでした。
無料で参加できるのでおすすめです。
※2024年からサイクリングツアーは有料(3,000円)になったそうです。
リッツカールトン日光の
無料アクティビティ奥日光歴史探索サイクリング
サイクリングは約1.5km
英国大使館・イタリア大使館
まで行って観光戻ってくるコース
帰りに日光山中禅寺立木観音に
立ち寄りました気持ち良かった😊 pic.twitter.com/1jo2l4tkCF
— ISA@リッツ東京×お得に旅するホテマイラー (@happy_mi_life) September 22, 2021
サイクリングツアー写真集
レンタルサイクル|2019年9月
前日に「奥日光歴史探索サイクリング(無料)」に参加したのですが、翌日の天気がさらに良かったのでサイクリングの気持ち良さの味を占めた私はレンタサイクル(有料)をして、竜頭の滝・戦場ヶ原まで行ってきました。
サンタサイクルは3時間以内2,500円で1日レンタルは4,500円です。
私は3時間で利用しました。
リッツ日光〜竜頭の滝〜戦場ヶ原〜リッツ日光のサイクリングの様子を動画の38秒でまとめてみた
爽快感伝わるかなぁ😊 pic.twitter.com/crrrk82GLm
— ISA@リッツ東京×お得に旅するホテマイラー (@happy_mi_life) September 23, 2021
最高に気持ち良かったので、天気が良ければサイクリングは超おススメです。
サイクリング写真集
リッツカールトン日光周辺レストラン・観光スポット
私が利用したレストランと体験した観光スポットを紹介します。

鮨 くろさき

ZEN RESORT NIKKO

欧州浪漫館 シェ・ホシノ

とんかつ浅井

手打ちそば かつら

華厳の滝

中禅寺湖

竜頭の滝

イタリア大使館

英国大使館

中禅寺

中禅寺湖展望台

明智平展望台
知っておくと便利なスーパーマーケット|リッツカールトン日光周辺

リッツカールトン日光の周辺にはコンビニエンスストアがありませんが、徒歩5分以内圏内に「中善寺ストアみうらや」というスーパーが一軒だけあります。
住所:〒321-1661 栃木県日光市中宮祠2478−17
営業時間:午前9:00~午後9:00
リッツカールトン日光からは中禅寺湖側の出口(レークハウス)から出て「ホテル花庵」の脇道を利用すると近道です。

お弁当、お惣菜、お菓子、飲み物、お酒、日用品など、一通りのものが販売されています。
電子決済(各種電子マネー、バーコード決済)も可能です。
マリオットエリート特典とリッツカールトン日光オリジナルの特典
リッツカールトン日光はマリオットボンヴォイ参加ホテルなので、マリオットポイントを利用した宿泊や、マリオットエリート特典で客室のアップグレードが可能です。
リッツカールトン日光のマリオットボンヴォイにおけるホテルランクは最上位ランクの『ラグジュアリー』です。
リッツカールトン日光の最もリーズナブルな客室(リバーサイドガーデンビュー キング/ダブル)に無料宿泊するために必要なポイントは以下となります。
| ホテルランク | 必要ポイントの目安 |
| ラグジュアリー | 75,000pt ~ 145,000pt |
なお、リッツカールトン日光は、プラチナエリート以上であっても朝食無料の特典がありませんのでご注意ください。
リッツカールトン日光でお得に宿泊する方法①|マリオットアメックスプレミアムカード
マリオットアメックスプレミアムカードは、発行するだけで無条件でマリオットゴールドエリートになれるお得なクレジットカードです。
マリオットゴールドになればリッツカールトン日光では以下の特典を受けられます
上記に加え、マリオットアメックスプレミアムカードは、クレジットカード100円利用あたり3ポイント、マリオットホテル&レストランで利用するとさらに3ポイント(100円=6ポイント)獲得可能なので、ポイントがとても貯まりやすいクレジットカードです。
また、クレジットカードの年間決済額が400万円を超えるとマリオットプラチナエリートになることができます。
リッツカールトン日光でのプラチナエリートの特典は以下のとおりです。
マリオットアメックスの特典については別の記事にまとめていますので下記ボタンから確認ください。
リッツカールトン日光でお得に宿泊する方法②|アメックスプラチナカードのファイン・ホテル・アンド・リゾート(FHR)
リッツカールトン日光は、マリオットボンヴォイの中でも最上位にランクされているため、プラチナエリート以上のステータスであっても、朝食無料の特典がなかったり、プラチナエリートであってもスイートへのアップグレード対象ではなりません。(スイートへのアップグレードはチタンエリート以上が対象)
そんなリッツカールトン日光ですが、マリオットボンヴォイのエリートメンバー以上の特典を受ける方法があります。
それは、アメックスプラチナカードのに付帯している「ファイン・ホテル・アンド・リゾート(FHR)」という特典です。

ファインホテルアンドリゾート(FHR)の特典
ファイン・ホテル・アンド・リゾート(FHR)の主な特典は上記の6つです。
特典の最後に記載した「ホテルのオリジナル特典」は、宿泊するホテルにより内容が異なりますが、リッツカールトン日光は、「ホテル内で利用できる100米ドル相当のクレジット」がホテルのオリジナル特典となっています。
特典の内容はマリオットボンヴォイのプラチナエリート以上の内容です。
100米ドル相当のクレジットと、リッツカールトン日光の朝食が付いているいるのは非常にありがたいです。




















































































































